Quick Upload
Explore
Features
Support
Contact Us
FAQ
Help Document
Pricing
Sign In
Sign Up
Quick Upload
Explore
Features
Support
Contact Us
FAQ
Help Document
Pricing
Sign In
Sign Up
Guset User
Download PDF
Publications :
78
Followers :
0
Ullrich Details PDF - UlltraClad
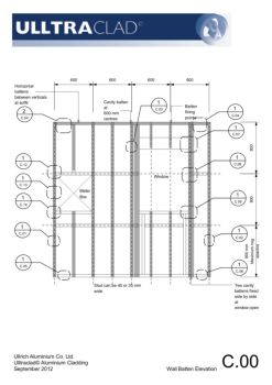
4 mm gap left between end of weatherboards and corner flashing Ulltraclad© UA4529 Male Corner Flashing fixed to wall framing with 30x2.5 mm clouts @ 600 mm ctrs
View Text Version
Category :
0
0
Embed
Share
Upload
Related publications